TMG El-Rehab
About Project
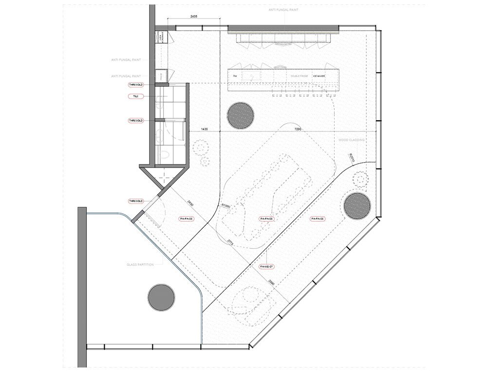
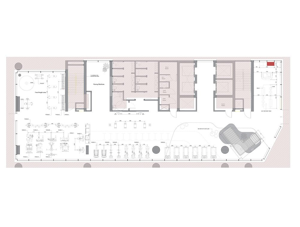
This project involves the implementation of comprehensive BIM modeling and design review services for the Costa Marie , located in Dubai, covering a total area of 816 square meters. The goal is to deliver a coordinated and efficient design process that enhances the overall quality, constructability, and performance of the project across all engineering trades.

































