Ministry Of Administration [MOI]
About Project
The AMC team proudly presents the detailed IFC package for the administration building project.
This comprehensive package includes meticulously designed facades, base architecture, and structural elements.
Our team has also submitted coordinated models, ensuring seamless integration and accuracy across all disciplines.
The result is a robust and well-coordinated blueprint that meets the highest standards of quality and precision.
Project Documentation and Details
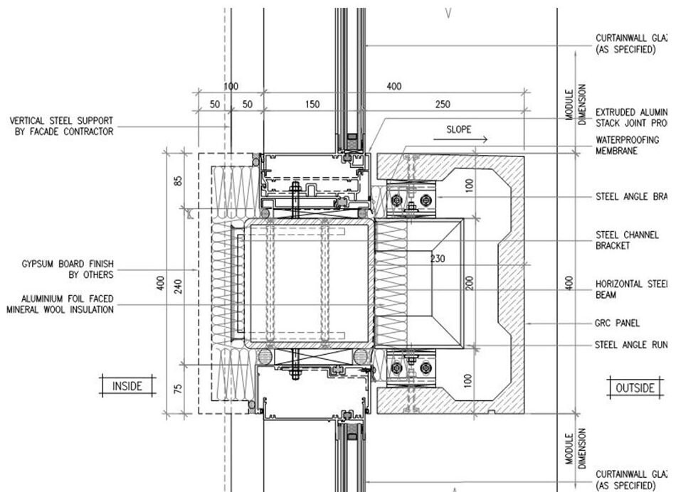
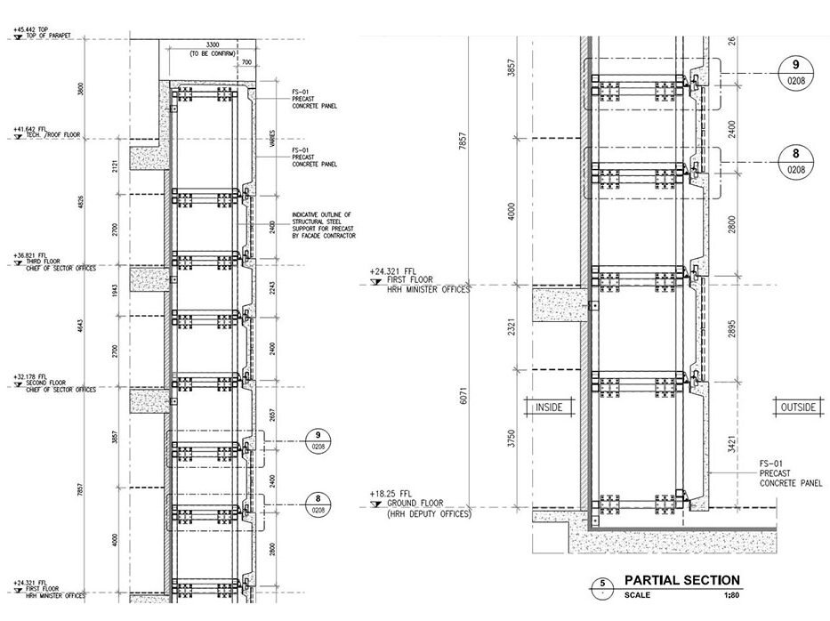
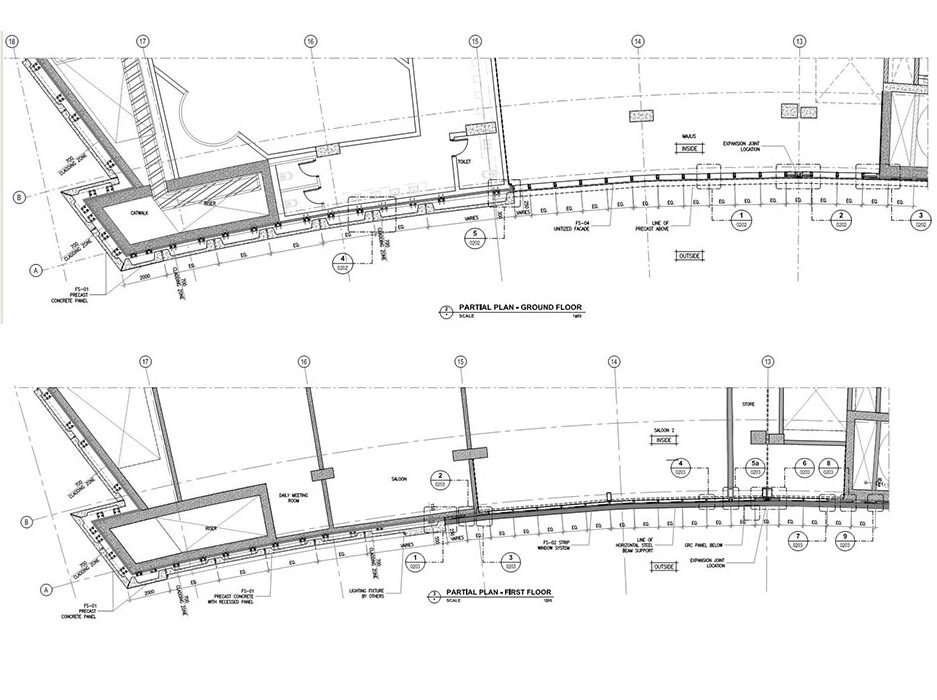
The Ministry of Administration (MOI) project has undergone a thorough review and refinement process to ensure the architectural and design outputs align with the highest professional and technical standards. The team dedicated substantial effort to update, enhance, and fully coordinate the BIM models, maintaining strict compliance with MOI’s requirements and international benchmarks of quality, precision, and integration.
As part of the project deliverables, a complete package of architectural drawings was developed, including plans, sections, elevations, details, and schedules. Each document was carefully prepared to reflect the latest design updates and interdisciplinary coordination, ensuring seamless implementation during construction. These outputs were tailored to support efficient execution, minimize potential conflicts on site, and address the client’s specific objectives with clarity and accuracy.







