Masar Project

  1. Home
  2. Projects
  3. Masar Project

Masar Project

About Project

The project spans 1.2 million m², divided into multiple plots with full site infrastructure planned. Package A, located at the Gateway to Al-Haram Mosque, serves as a key transport hub and features two 5-star hotels, one 4-star hotel, a luxury residential tower, and two retail buildings, shaping the architectural identity of the MASAR Project.

AMC reviewed the IFT design by Omrania & HOK, delivering value engineering across all disciplines while preserving design intent. This forms the basis for IFC documentation within the project budget.

Project Visual

These shots have been received and fully developed to achieve a complete BIM model containing all the required details to meet the client’s requirements. This included performing all coordination tasks and BIM works in accordance with the approved standards.

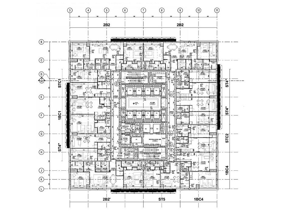
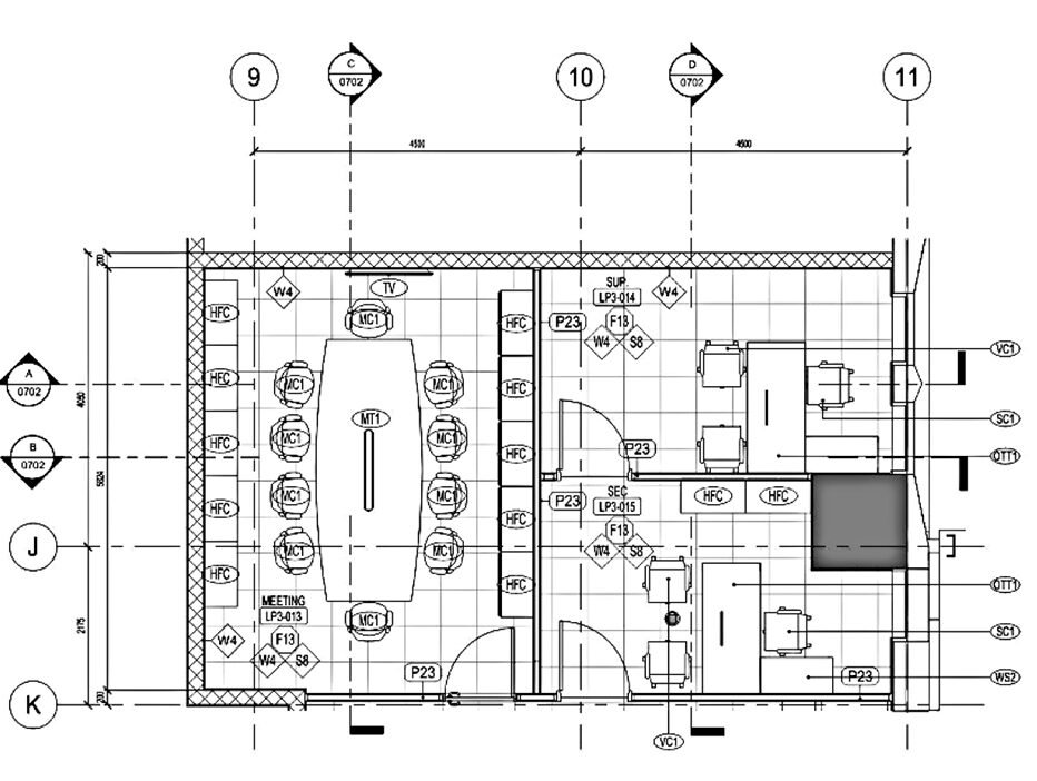
Interior Design

For the Masar Project, the Interior Design BIM Modeling and coordination works have been fully developed to deliver a complete BIM model containing all required details to meet the client’s requirements. This included executing all coordination tasks and BIM works in full compliance with the approved standards.

Documentation and Details

AMC has exerted significant effort to review, update, and enhance the architectural models for the Masar Project, ensuring they meet the highest quality standards. The team performed extensive modifications to achieve a precise and fully coordinated Interior Design BIM model in compliance with our own AMC standards, which focus on accuracy, clarity, and integration across all disciplines.

As part of the deliverables, AMC provided a comprehensive set of architectural drawings, including plans, sections, elevations, details, and schedules, each prepared to reflect the latest model updates and coordination results. These drawings were produced to facilitate smooth construction implementation, minimize site conflicts, and fulfill the client’s specific requirements.