Al Hammad Project
About Project
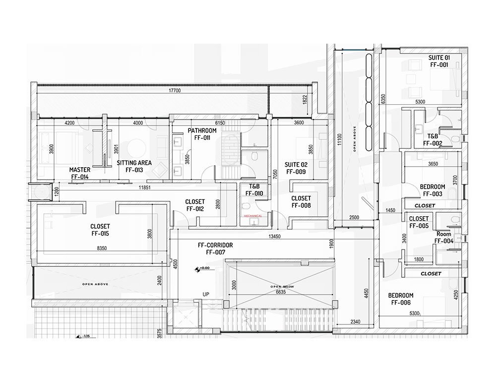
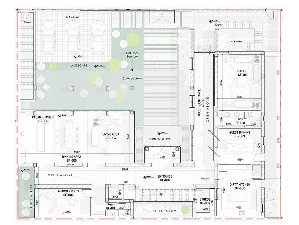
This project involves the implementation of comprehensive BIM modeling and design review services for the Al Hammad Project, located in Riyadh, Saudi Arabia, covering a total area of 816 square meters. The goal is to deliver a coordinated and efficient design process that enhances the overall quality, constructability, and performance of the project across all engineering trades.
Project Documentation and Details
AMC has exerted significant effort to review, update, and enhance the architectural models for the Al Hammad Project, ensuring they meet the highest quality standards. The team performed extensive modifications to achieve a precise and fully coordinated Interior Design BIM model in compliance with our own AMC standards, which focus on accuracy, clarity, and integration across all disciplines.
As part of the deliverables, AMC provided a comprehensive set of architectural drawings, including plans, sections, elevations, details, and schedules, each prepared to reflect the latest model updates and coordination results. These drawings were produced to facilitate smooth construction implementation, minimize site conflicts, and fulfill the client’s specific requirements.






