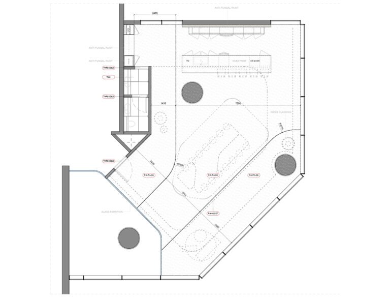
Shop Drawing

At AMC Engineering, we deliver high-accuracy BIM-based shop drawings in Riyadh for architectural, structural, and MEP systems—ensuring constructability, compliance, and efficient execution both on-site and off-site.